Meander on Arkkitehtuurin Finlandia -finalisti
Meander on saanut useita kansainvälisiä palkintoja ja huomiota arkkitehtuurijulkaisuissa. Arkkitehtuurin Finlandia -palkinnon finaalipaikka on silti merkittävä, sillä ehdokkaat ovat perinteisesti olleet julkisia rakennuksia, kuten kouluja ja kirjastoja. Meander erottuu asuinrakennuksena, joka haastaa mielikuvan uudisasumisesta.

Meander on Töölön uusi arkkitehtoninen helmi
Steven Holl tunnetaan rakkaudestaan valoon, luontoon ja sen moninaisiin muotoihin. Suomessa hänet tunnetaan parhaiten Nykytaiteen museo Kiasman suunnittelijana. Töölössä sijaitseva Meander-talo on Hollin kansainvälisesti arvostetun arkkitehtuurin paluu Helsinkiin. Taivallahden rantaan noussut rakennus yhdistää täysin uniikilla tavalla veistoksellisuuden ja käytännöllisyyden.
Meanderissa on kolme sisääntuloaulaa, jotka luovat ennennäkemättömän ensivaikutelman. A-portaan yhteistilassa voi järjestää tilaisuuksia, ja samassa rapussa sijaitsee saunaosasto terasseineen. Lisäksi asukkaille on juhla- ja etätyöskentelytila sekä joogasali.
Ensimmäisessä kerroksessa arkea helpottavat N&B-taloista tutut ratkaisut: arkieteinen kurasuihkulla, pyöränhuoltopiste, yhteiskäyttöpyörät ja pakettipiste.
Rakennuksen alle on louhittu 67-paikkainen autohalli, jossa on sähkölatausvalmiudet. Halliin pääsee suoraan hissillä.
Taloyhtiö
Meander
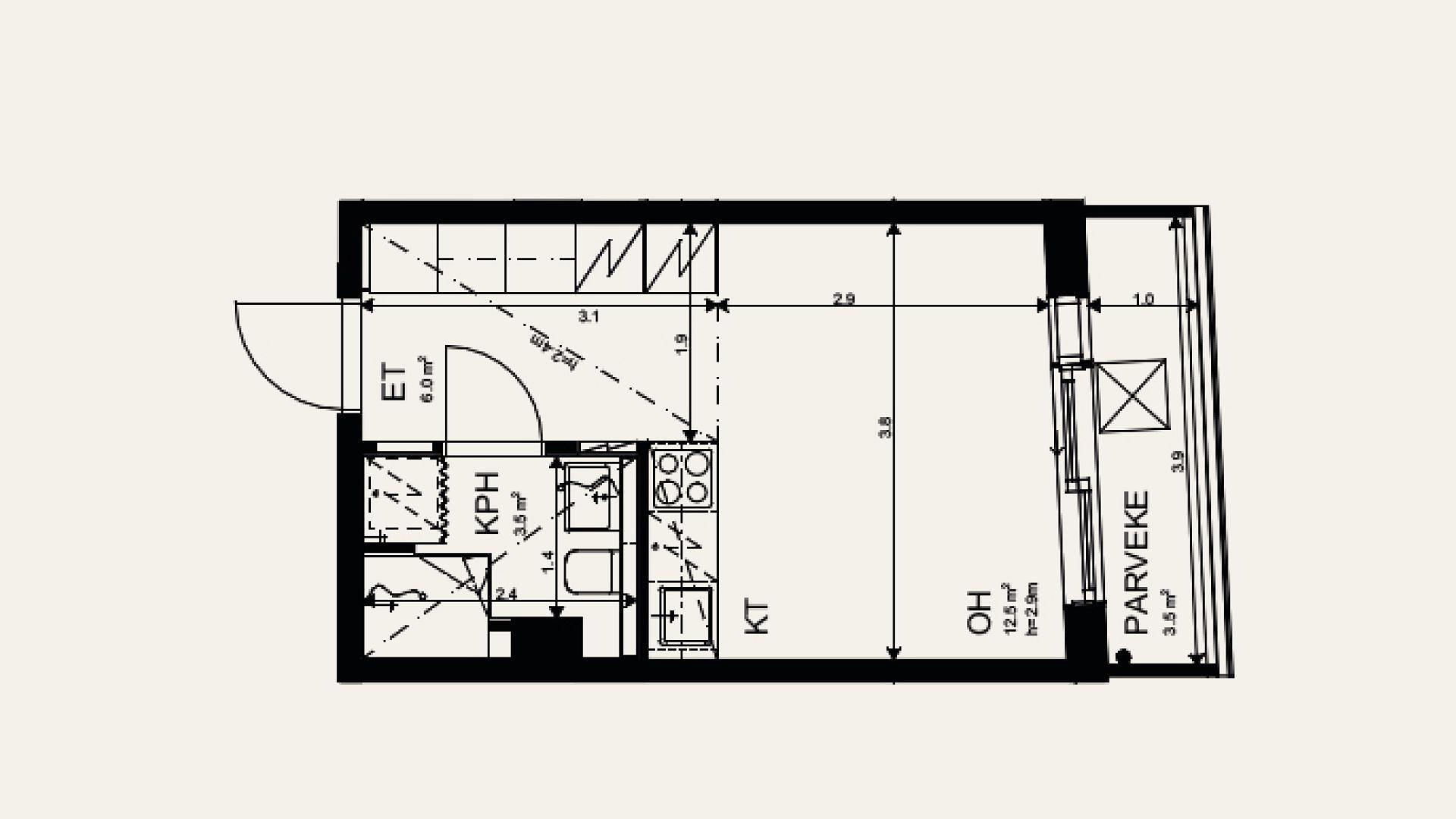
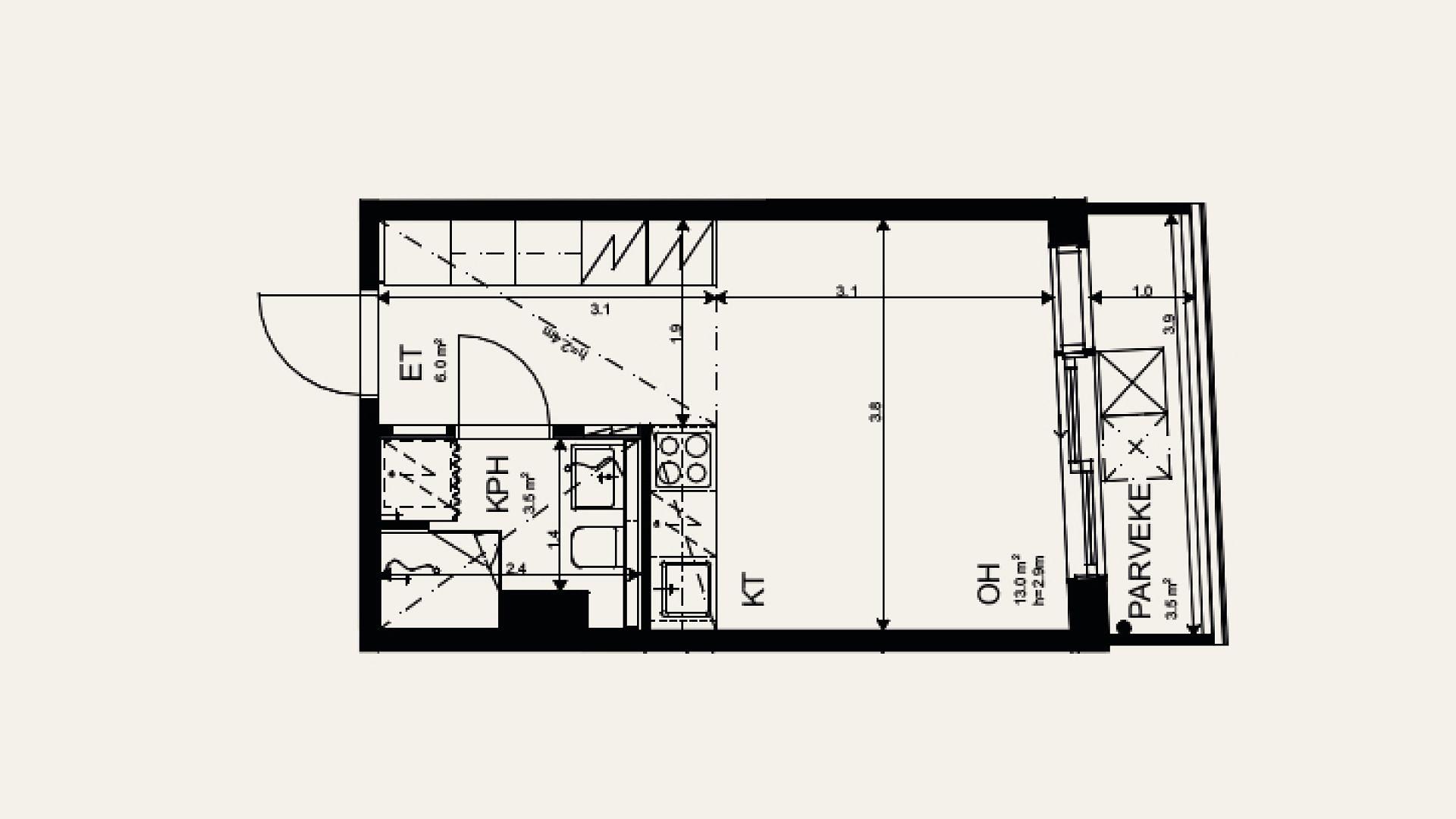
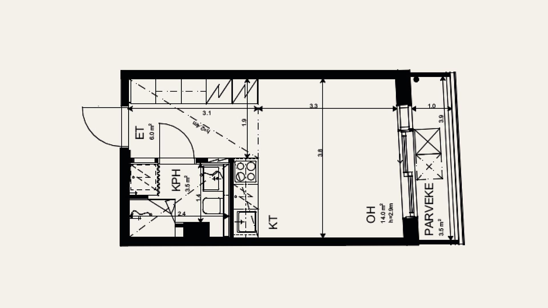
Asunnot
Laadukkaita, ajattomia ja kauniita koteja






Sijainti & lähipalvelut
Taloyhtiö kartalla
Meanderin ympäristö on yksi Helsingin halutuimmista asuinalueista. Ympäristössä vallitsee puistoalueiden ja rakennusten sopusointu. Alueen mittakaava on inhimillinen ja miellyttävä: hyvää naapurihenkeä voi aistia pihoilla, puistoissa ja kävelyteillä.

Sijainti
TERVETULOA TÖÖLÖÖN
Töölössä kaupunkielämä kohtaa luonnon rauhan. Kulttuuri, kivijalkaliikkeet ja vehreät puistot ovat enemmän kuin lähellä: oopperasta kivijalkakauppoihin ja rantabulevardille – kaikki samassa trendikkäässä naapurustossa.

Piha
Vehreä piha kutsuu viihtymään
Monipuolinen piha tarjoaa paikan leikkiin, oleiluun ja rauhoittumiseen – auringossa tai varjossa, yksin tai yhdessä.
Meanderin suojaisa piha on kuin pieni kaupunkikeidas – vehreä, monimuotoinen ja rauhoittava. Puistomainen kokonaisuus tarjoaa sekä avoimia näkymiä että intiimejä levähdyspaikkoja auringossa tai varjossa. Pihan monipuolinen suunnittelu kutsuu leikkiin, vilvoitteluun ja kiireettömään oleskeluun – istutusallas, pergola, leikkipaikka ja runsaasti penkkejä tekevät siitä kaikkien yhteisen olohuoneen. Kasvit kukkivat eri aikaan vuodesta, ja helppohoitoisuus takaa kauniin ilmeen vuodesta toiseen.

Palvelut
Yhteistilat vailla vertaa
Meanderin yhteistilat on suunniteltu tekemään arjesta sujuvampaa ja juhlahetkistä ikimuistoisia – käytännöllisyyttä, viihtyisyyttä pientä ylellisyyttä unohtamatta.
Meanderissa arki on juhlaa jo kotiovella. Näyttävät ja huolella viimeistellyt sisääntuloaulat toivottavat asukkaat ja vieraat tervetulleiksi. A-portaasta löytyy tunnelmallinen saunaosasto terasseineen sekä monikäyttöinen juhla- ja etätyötila, joogasalia unohtamatta.
Arkea sujuvoittavat kurasuihkulla varustettu arkieteinen, pyöränhuoltopiste, yhteiskäyttöpyörät ja ruokatilausten säilytyspisteet – kaikki helposti saavutettavissa ensimmäisessä kerroksessa.
Elämyksiä ja käytännöllisyyttä tarjoaa myös Meanderin maanalainen maailma: 67 sähkölatausvalmiudella varustettua autopaikkaa, yhteiskäyttöauto, taloyhtiön oma elokuvateatteri sekä tunnelmallinen viinikellari kruunaavat kokonaisuuden.


Elokuvateatteri
Laadukkaalla äänentoistolla, himmennettävällä valaistuksella, suurella näytöllä ja mukavilla istuimilla varustettu tila toimii erinomaisesti leffailtojen tai vaikkapa pienten kokousten järjestämiseen. Tilassa on istuimia yhteensä noin 18 hengelle: 10 paikkaa pöytien ääressä, leveä sohva ja nojatuoleja. Elokuvateatterista löytyy myös inva-wc ja tyylikäs keittiö, joka on varusteltu jääkaapilla, liedellä, astianpesukoneella ja vesipisteellä.


Jooga- ja etätyötila
Monitoimitila soveltuu joogaan tai muuhun kevyeen kuntoiluun sekä etätyöskentelyyn. Tilassa on runsaasti vapaata lattiatilaa, joogamattoja, treenivälineitä, televisio sekä pitkä korkea työskentelypöytä, jonka ääreen mahtuu useampi henkilö yhtäaikaa.


Lounge
Olohuonemaisesta juhlatilasta löytyy kuuden hengen ruokailuryhmä, tunnelmallinen biotakka sekä viihtyisä istuinryhmä kahdelle. Tilassa on myös tyylikäs keittiö, joka on varusteltu jääkaapilla, liedellä, astianpesukoneella, vesipisteellä ja Raaka Rå -keramiikkastudion Meanderia varten valmistamilla astioilla. Loungesta on myös pääsy pihalle sekä saunaosastolle.


Saunaosasto ja ulkoterassi
Spa-osastolta löytyy sauna, pesutilat sadesuihkuin, poretoiminnolla varustettu kylpyamme, pukuhuone sekä vilvoitteluterassi.


Viinitupa
Viinituvassa on 9 kappaletta lukittavaa viinikaappia. Viiniosake sisältää pääsyn viinitupaa ja oman lukitun kaapin.


Yhteiskäyttöauto ja -pyörät
Asukkaana voit hakea alakerran autohallista yhtiön Omago-yhteiskäyttöauton käyttöösi vaikka ostosreissua varten. Vaihtoehtoisesti voit liikkua Pelagon yhteiskäyttöpyörällä. Talosta löytyy myös pyöränhuoltopiste ja sähköpyörien latauskaappi.


Arkieteinen ja pakettipiste
Käytännöllisessä arkieteisessä on kurasuihku, jolla voit huuhdella vaivattomasti lemmikkisi tai polkupyöräsi ulkoilun jälkeen. Talon palveluihin kuuluvat myös lukittava kaappi, jonne voit tilata kotiinkuljetettavat lähetyksesi.

Taide täydentää asumiskokemuksen
Kolme taidetta ja designia yhdistävää sisääntuloaulaa
Auloissa on Steven Hollin suunnittelema puupenkki, lasitaideteos ja kehys, jolla vedostettiin Fanny Tavastilan asukaslahjaksi annetut teokset.
Asiakaspalaute
Mitä Meanderin asukkaat meistä sanovat?

ASIAKASARVIO | Meander
★★★★★
“Hyvä sijainti Töölössä, Hollin arkkitehtuuri, korkeat huoneet ja iso parveke. Asunto on valoisa ja upea. Työn laatu oli hyvä.”

ASIAKASARVIO | Meander
★★★★
“Asunto oli valmis sovittuna päivänä ja heti toimiva. Ja asumisen ensipäivinä havaitut pienet puutteet korjattiin nopeasti. Muuttotarvikkeille järjestetyt roskalavat olivat hyvä palvelu.”

ASIAKASARVIO | Meander
★★★★
“Erityisesti houkutteli tunnettu arkkitehti ja hänen hieno visio talosta meille tärkeässä kaupunginosassa. Iso lasitettu parveke oli meille aivan unelma”
Asunnon ostaminen
KAUPANTEKO
Unelmiesi kodin ostaminen alkaa yhteydenotosta myyjäämme. Jos tarvitset lisätietoja, haluat vierailla kohteessa tai haluat nähdä asunnon. Mikäli kaipaat apua sopivan kodin valintaan, olethan meihin yhteydessä.
Kun olet löytänyt sopivan asunnon voit aloittaa kaupantekoprosessin vaikka heti täyttämällä kauppakirjaan vaaditut tiedot. Jos tarvitset aikaa rahoituksen järjestämiseen tai nykyisen kotiisi myyntiin autamme sinua mielellämme yksilöllisen aikataulun luomiseksi.
Rahoitustarjous
Omarahoitusosuus ensiasunnon ostajille vain 5 %
- Omarahoitusosuus ensiasunnon ostajille vain 5 % ja muille vain 10 %
- Matala kuukausierä jopa 30 vuoden laina-ajan ansiosta.
- Joustava kk-erä lyhennysvapaan ansiosta
- Kilpailukykyinen marginaali.
Tutustu & osta
Myytävät asunnot
Tutustu Meanderin viimeisiin vapaisiin asuntoihin valitsemalla sinua kiinnostava asunto listalta. Voit ostaa asunnon suoraan ilman erillistä varausta tai jättää yhteydenottopyynnön, jos tarvitset lisätietoja.
Löydä oma N&B koti
Tutustu upeisiin sijainteihimme

Ahertajantie 6, Espoo
N&B Tapiola
- Valmistuu 1-2/2028
- 42-132 m²
- 1-6 krs.
- 38 as.
- a-energialuokka, aurinkopaneelit, viherkatto
- spa-osasto, kuntosali, lounge / etätyötila, viinitupa, yhteiskäyttöpyörät, pesula- ja kuivaushuone

Melkonkatu 16, Helsinki
N&B Lauttasaari
- Valmistuu 4-5/2028
- 25-146 m²
- K1-8 krs.
- 38 as.
- a-energialuokka, aurinkopaneelit
- spa-osasto, kuntosali, lounge / etätyötila, viinitupa, yhteiskäyttöpyörät, pesula- ja kuivaushuone

Laivalahdenkatu 4, Helsinki
N&B Herttoniemi
- Valmistuu 12/2028 - 1/2029
- 26-87 m²
- 1-14 krs.
- 102 as.
- a-energialuokka, leed-sertifikaatti, aurinkopaneelit
- saunaosasto, kuntosali, lounge / etätyötila, yhteiskäyttöpyörät, pesula- ja kuivaushuone

Mannerheimintie 76, Helsinki
76&Piha
- Muuttovalmis
- 27-110 m²
- K1-6 krs.
- 32 as.
- kierrätetty runko, viherpiha
- uima-allas, muita yhteistiloja, autohalli, etätyötila, spa-osasto, nikkarointitila, joogatila
- alk. 298 000N&B Rahoituksella alk. 897 €/kk




